List Price: $429,000 | $456 per sq.ft. | 2 Bedroom | 2 Bathroom | 2 Story Single Family Home
Listed Friday Mar 6, 2026 | MLS# 5078447
Lot 6 Blackberry Lane Charlestown NH
Listed by Kathryn Beam Galloway Real Estate LLC
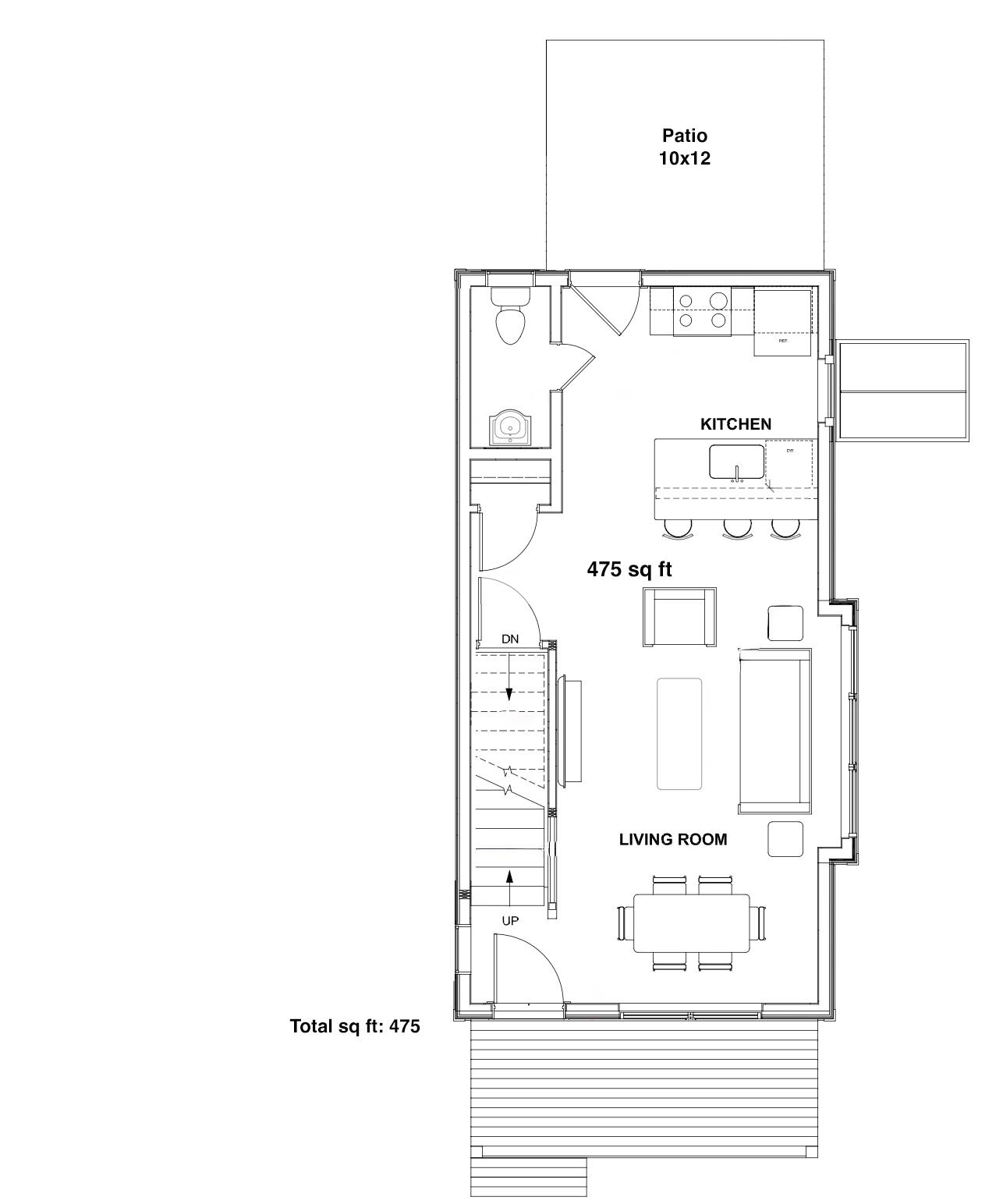
Welcome to the Grove, a thoughtfully planned new construction community of energy-efficient homes set along the Connecticut River in scenic Charlestown. Built on land with a conservation-focused legacy, this neighborhood is designed to preserve a natural beauty while offering modern, comfortable living with a peaceful, rural feel. This brand-new 2-bedroom, 2-bath home features a bright, open-concept layout filled with natural light-perfect for everyday living and easy entertaining. The kitchen, dining and living areas flow seamlessly together, creating a warm and inviting main living space. Upstairs, you'll find three comfortable bedrooms, including spacious primary suite with a private bath. The home includes a full concrete basement offering excellent storage and future potential to finish for additional living space, a home gym or media room. Enjoy the best of NH living with nearby walking trails and paths to the Connecticut River, ideal for peaceful strolls, outdoor recreation and soaking in the natural surroundings. Located in the scenic Sugar River Valley, you'll have easy access to Claremont, Keene and the Upper Valley while still enjoying a quiet country setting. Designed and built by Chinburg Builders, a trusted Energy Star builder for over 20 yers, these homes offer lower energy costs, enhanced comfort and quality construction verified by independent testing. The Grove delivers a rare opportunity to own a brand-new, energy-efficient home in a beautifully planned riverside community.
Flooring: Vinyl Plank
Total Rooms: 6
Total Baths: 2
1/2 Baths: 1
3/4 Baths: 1 0
Total Bedrooms: 2
Bathroom Half: Room Dimensions: Floor: 1
Kitchen : Room Dimensions: Floor: 1
Living/Dining : Room Dimensions: Floor: 1
Bedroom : Room Dimensions: Floor: 2
Bathroom Three Quarter : Room Dimensions: Floor: 2
Basement: Concrete | Concrete Floor | Partially Finished
Year Built: 2026
Type: Wood Frame | Vinyl Siding

Building Info
Finished Sq.Ft.: 1283
Above Grade Sq.Ft.: 940
Below Grade Sq.Ft.: 0
Apx Below Grade Unfinished Sq.Ft.: 343

Exterior Info
Style: Modern Architecture
Roof: Asphalt Shingle

Utilities
Electric: 200+ Amp Service
Water: Public
Sewer: Private

Land Description:
Country Setting | Level | Open | Near Paths | Near Shopping | Neighborhood
Lot size: 0.44 acres
Zoned: Residential
Surveyed: Yes
Flood Zone: No
Seasonal: No
Road Frontage: 39
Driveway: Paved



Block - 6
Taxes $0
Assesed Value Not Reported
Schools
School District: Fall Mountain Reg SD SAU #60
Elementary School: Charlestown Village School
Middle School: Charlestown Middle School
High School: Fall Mountain High School

© 2000-2026 Clerkin Agency Real Estate
NEREN Logo
565 Maple Street, White River Junction, Vermont. 05001 802-295-1355
Copyright © 2026 PrimeMLS, Inc. All rights reserved. This information is deemed reliable, but not guaranteed. The data relating to real estate displayed on this display comes in part from the IDX Program of PrimeMLS. The information being provided is for consumers’ personal, non-commercial use and may not be used for any purpose other than to identify prospective properties consumers may be interested in purchasing. Data last updated April 18th, 2026

PLEASE NOTE: Both New Hampshire and Vermont law require brokers and agents to disclose at the “time of first business meeting, prior to any discussion of confidential information”, in New Hampshire’s case, and “first reasonable opportunity”, in Vermont’s case, the nature of the relationships brokers have or may have with customers and clients. Each state requires that a disclosure form be presented to consumers for their review and acknowledgment at the appropriate time. These forms can be accessed here:
VT: VERMONT REAL ESTATE COMMISSION MANDATORY CONSUMER DISCLOSURE FORM
NH: NEW HAMPSHIRE REAL ESTATE COMMISSION BROKERAGE RELATIONSHIP DISCLOSURE FORM