List Price: $795,000 | $193 per sq.ft. | 5 Bedroom | 5 Bathroom | 2 Story Single Family Home Under Contract
Listed Thursday Jan 8, 2026 | MLS# 5073578
3 Fairway Drive Village of Eastman in Town of Grantham NH
Listed by Karolina Burtt EXP Realty
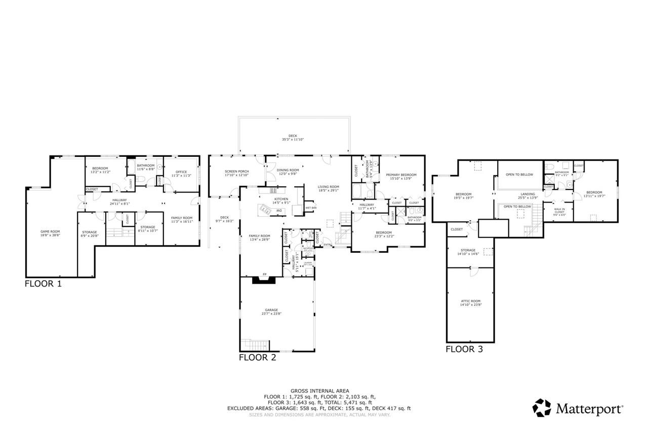
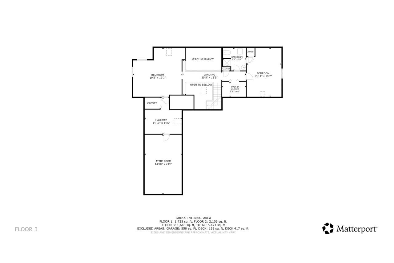
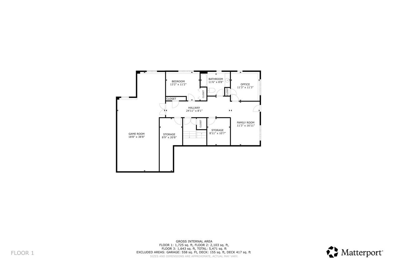
If you're looking for a full-time residence or a second home where everyone can gather, spread out, and truly reconnect, 3 Fairway Drive in the Eastman Community delivers. This 5-bedroom, 5-bath contemporary Cape offers a smart, flexible floor plan designed for long weekends, holidays, and memorable summer stays with family and friends. Two en suite bedrooms on the main level make hosting effortless and ideal for single-level living, while the upper-level bedrooms provide cozy, private retreats for guests, or extended family. At the heart of the home, the centrally located kitchen keeps everyone connected, flowing seamlessly into the dining room, family room, and living room--perfect for shared meals, games, and relaxed evenings together. Outdoor living shines here. The screened porch and expansive deck invite morning coffee with golf-course views, afternoon grilling, evening stargazing, and casual gatherings that stretch late into the night. The finished walk-out lower level adds even more versatility, featuring a bedroom, office, family room, and generous storage for skis, beach gear, and all the essentials of active New England living. Set on a private 0.62-acre lot with an attached two-car garage, this home offers full access to Eastman's lake, beaches, trails, golf course, and recreation center--within a welcoming, amenity-rich community built for year-round enjoyment. Conveniently located just minutes from Dartmouth Hitchcock Medical Center and Dartmouth College, this is a place where lifestyle, comfort, and connection come together.

Negotiable : Furnishings
Flooring: Carpet | Ceramic Tile | Hardwood | Laminate | Vinyl Plank
Total Rooms: 12
Total Baths: 5
Full Baths: 2
1/2 Baths: 1
3/4 Baths: 2 0
Total Bedrooms: 5
Living Room: Room Dimensions: Floor: 1
Family Room : Room Dimensions: 13'-4"x28'-9" Floor: 1
Kitchen : Room Dimensions: 9'-1"x14'-5" Floor: 1
Primary Bedroom : Room Dimensions: 13'-9"x15'-10" Floor: 1
Bedroom with Bath : Room Dimensions: 12'-2"x23'-3" Floor: 1
Bedroom : Room Dimensions: 13'-11"x19'-7" Floor: 2
Bedroom : Room Dimensions: Floor: Basement
Office/Study : Room Dimensions: 11'-3"x11'-3" Floor: Basement
Basement: Finished | Full | Walkout
Year Built: 1987
Type: Wood Siding

Building Info
Finished Sq.Ft.: 4830
Above Grade Sq.Ft.: 3105
Below Grade Sq.Ft.: 1023
Apx Below Grade Unfinished Sq.Ft.: 702

Exterior Info
Style: Cape | Contemporary
Exterior Color Brown
Roof: Standing Seam

Utilities
Electric: 200+ Amp Service
Water: Community
Sewer: 1000 Gallon

Land Description:
Level | Sloping | Abuts Golf Course
Lot size: 0.62 acres
Zoned: RR1
Surveyed: Unk
Flood Zone: No
Seasonal: No
Road Frontage: 70
Driveway: Gravel



Easement - Yes
Block - 0
Taxes $11,519
Assesed Value Not Reported
Schools
School District: Grantham Sch District SAU # 75
Elementary School: Grantham Village School
Middle School: Lebanon Middle School
High School: Lebanon High School

© 2000-2026 Clerkin Agency Real Estate
NEREN Logo
565 Maple Street, White River Junction, Vermont. 05001 802-295-1355
Copyright © 2026 PrimeMLS, Inc. All rights reserved. This information is deemed reliable, but not guaranteed. The data relating to real estate displayed on this display comes in part from the IDX Program of PrimeMLS. The information being provided is for consumers’ personal, non-commercial use and may not be used for any purpose other than to identify prospective properties consumers may be interested in purchasing. Data last updated May 27th, 2026

PLEASE NOTE: Both New Hampshire and Vermont law require brokers and agents to disclose at the “time of first business meeting, prior to any discussion of confidential information”, in New Hampshire’s case, and “first reasonable opportunity”, in Vermont’s case, the nature of the relationships brokers have or may have with customers and clients. Each state requires that a disclosure form be presented to consumers for their review and acknowledgment at the appropriate time. These forms can be accessed here:
VT: VERMONT REAL ESTATE COMMISSION MANDATORY CONSUMER DISCLOSURE FORM
NH: NEW HAMPSHIRE REAL ESTATE COMMISSION BROKERAGE RELATIONSHIP DISCLOSURE FORM